1887 SE Milport Rd. - Warehouse 215, Milwaukie, OR 97222
1887 SE Milport Rd. - Warehouse 215, Milwaukie, OR 97222
15K SQ FT Production Facility – Built for Cannabis or Controlled Crops
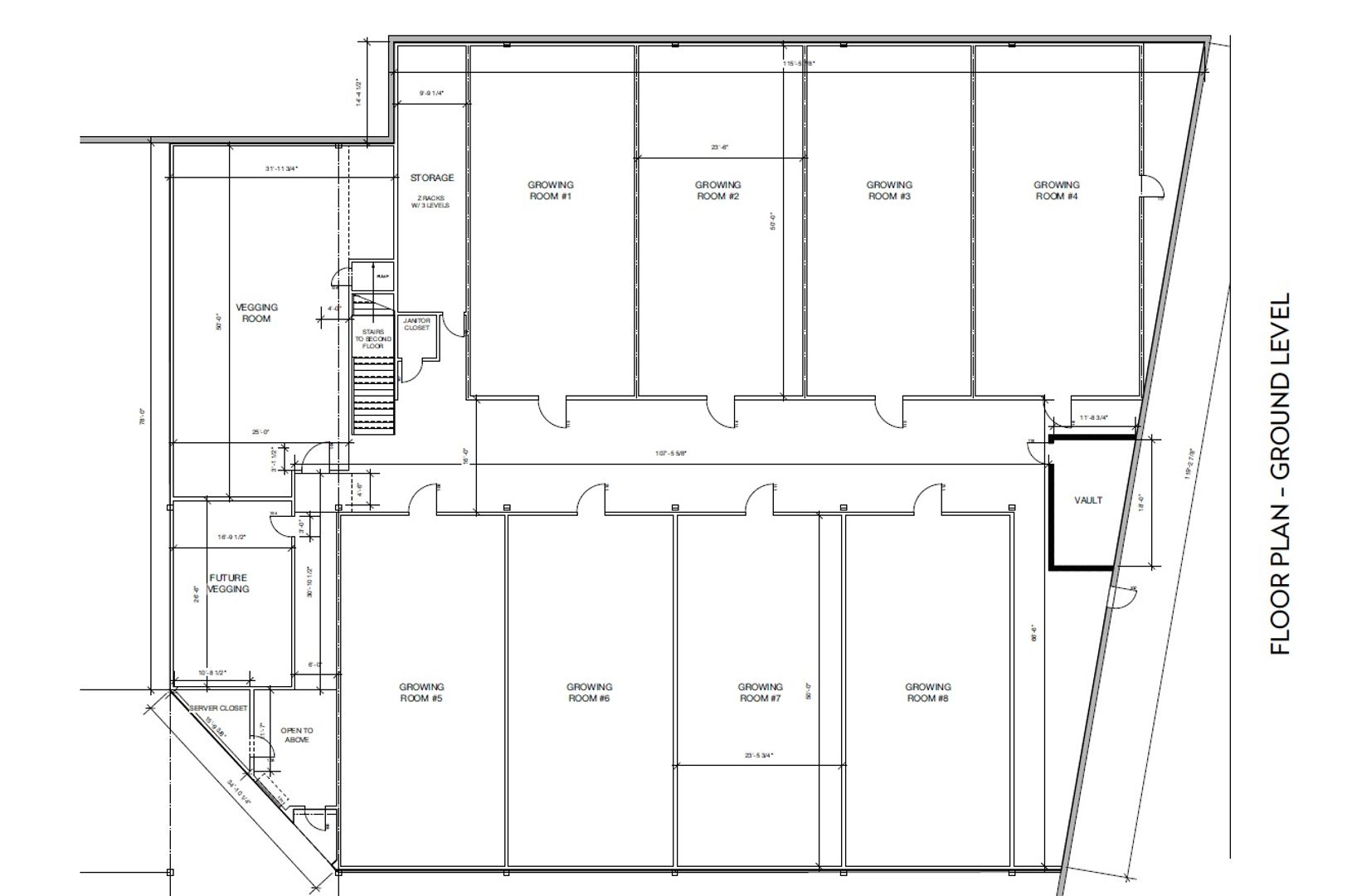
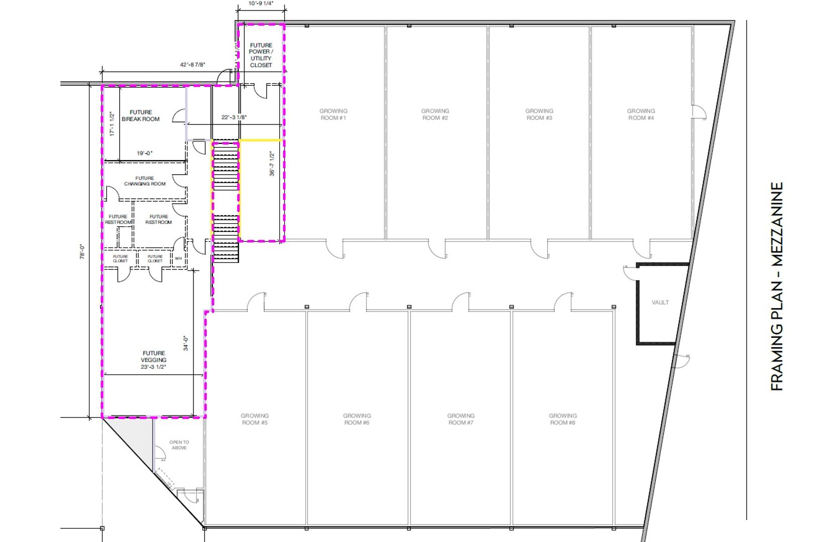
Your new cultivation facility is ready for immediate use! This 15,350 SQ. FT. space is fully built out as a multi-room, plug-and-play indoor garden, offering serious power, infrastructure, and room to scale. The ground floor features 10 individual grow rooms (most around 1,200 SQ. FT. each), plus floor drains, extensive electrical distribution, and plumbing for both water and gas. Upstairs, a ~1,000 SQ. FT. mezzanine provides office space plus an additional ~1,000 feet for storage or to build out for additional work areas. This secure facility sits in business-friendly Milwaukie (Clackamas County) and can support cannabis or other controlled-environment crops. Set up your operation in a location that understands production users and offers easy access to regional transportation routes.
Unit Details:
- 15,350 SQ. FT. total space
- 10 dedicated grow rooms (~1,200 SQ. FT. each)
- Fully plug-and-play cultivation buildout
- Floor drains throughout grow rooms
- Significant electrical capacity with strong distribution
- Plumbed for water and gas
- ~1,000 SQ. FT. mezzanine with office + expansion room
- Secure, non-descript exterior
- Shared conference room
- Shared forklift
- Loading dock with dock-high and grade-level entry
- Clackamas County / Milwaukie location
- User pays usage fee, utilities, and pro rata share of property taxes & insurance
Our warehouse space is available for light manufacturing, distribution, industrial uses, storage, and artist/creative workspaces. At NW Flex Space, we strive to learn and understand your business goals to build you the ideal workspace! We also provide the opportunity for your company to prosper with flexible leasing options that allow you to keep growing with us as your business expands. Please contact us for more information, schedule tours and view current available spaces in this building or others.
Unit Details:
- 15,350 SQ. FT. total space
- 10 dedicated grow rooms (~1,200 SQ. FT. each)
- Fully plug-and-play cultivation buildout
- Floor drains throughout grow rooms
- Significant electrical capacity with strong distribution
- Plumbed for water and gas
- ~1,000 SQ. FT. mezzanine with office + expansion room
- Secure, non-descript exterior
- Shared conference room
- Shared forklift
- Loading dock with dock-high and grade-level entry
- Clackamas County / Milwaukie location
- User pays usage fee, utilities, and pro rata share of property taxes & insurance
Our warehouse space is available for light manufacturing, distribution, industrial uses, storage, and artist/creative workspaces. At NW Flex Space, we strive to learn and understand your business goals to build you the ideal workspace! We also provide the opportunity for your company to prosper with flexible leasing options that allow you to keep growing with us as your business expands. Please contact us for more information, schedule tours and view current available spaces in this building or others.
Contact us:







